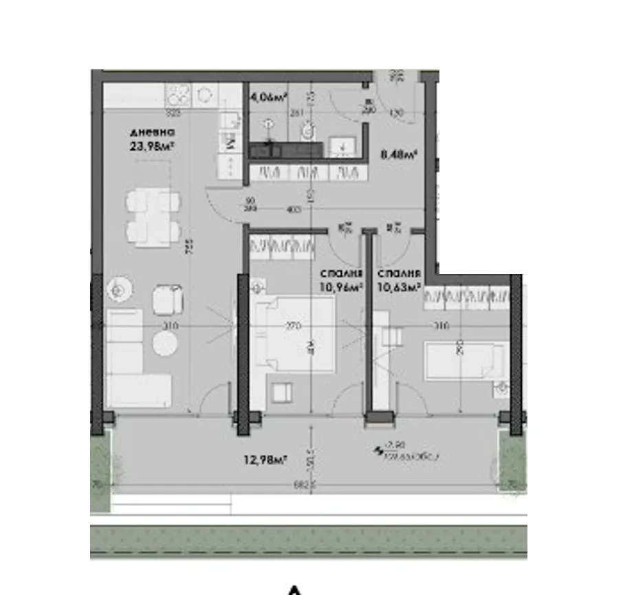
Агенция за недвижими имоти 'S PROPERTIES' предлага за продажба тристаен апартамент в новострояща се сграда в кв. Изгрев.
Жилището се състои от дневна с кухня, две спални, коридор и тераса-веранда.
✅ИЗЛОЖЕНИЕ ЮГ
✅ФУНКЦИОНАЛНО РАЗПРЕДЕЛЕНИЕ
✅ГЪВКАВИ СХЕМИ НА ПЛАЩАНЕ
СРОК НА ЗАВЪРШВАНЕ - 36 МЕСЕЦА ОТ ОТКРИВАНЕ НА СТРОИТЕЛНА ПЛОЩАДКА
ДОКАЗАН СТРОИТЕЛ, БЕЗ КОМПРОМИСНО КАЧЕСТВО
МНОГО ДОБРА ЛОКАЦИЯ , В НЕПОСРЕДСТВЕНА БЛИЗОСТ ДО МАГАЗИНИ,
УЧИЛИЩА И ДЕТСКИ ГРАДИНИ , СПИРКИ НА ГРАДСКИ ТРАНСПОРТ.
СГРАДАТА РАЗПОЛАГА С
- 58 ЖИЛИЩА
- ПОДЗЕМНИ И ОТКРИТИ ПАРКОМЕСТА
Ако тези характеристики съвпадат с вашата представа за мечтания дом, се обадете за презентация и оглед.