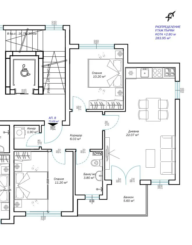
? **Продава се нов 3-стаен апартамент в м-т Пчелина, Варна!**
Представяме Ви един модерен, новопостроен апартамент, изградена през 2025 година. Разположен в тих и спокоен квартал, този имот е отличен избор както за млади семейства, така и за хора, които търсят комфорт и уют. Имотът разполага със следните характеристики:
- ? **Местоположение**: Варна, м-т Пчелина
- ? **Година на построяване**: 2025
- ? **Обща площ**: 70.69 кв.м
т за живот в съчетание с природата, само на няколко минути от центъра на Варна. Местността Пчелина се отличава с прекрасни панорами и спокойствие, благодарение на близостта си до зелени площи и удобни комуникации. ?
Мястото е добре обслужено от обществения транспорт, което го прави идеално за тези, които искат да бъдат близо до всички удобства на града, докато се насладят на спокойствието на крайградските райони. ?
Не пропускайте възможността да притежавате този изключителен апартамент на отлична цена! Свържете се с нас за повече информация и организиране на оглед. ?