Начало
Имоти
Ексклузивни Имоти
Всички Имоти
Проекти
Екип
Кариера
Нашият Екип
Контакти
Вход
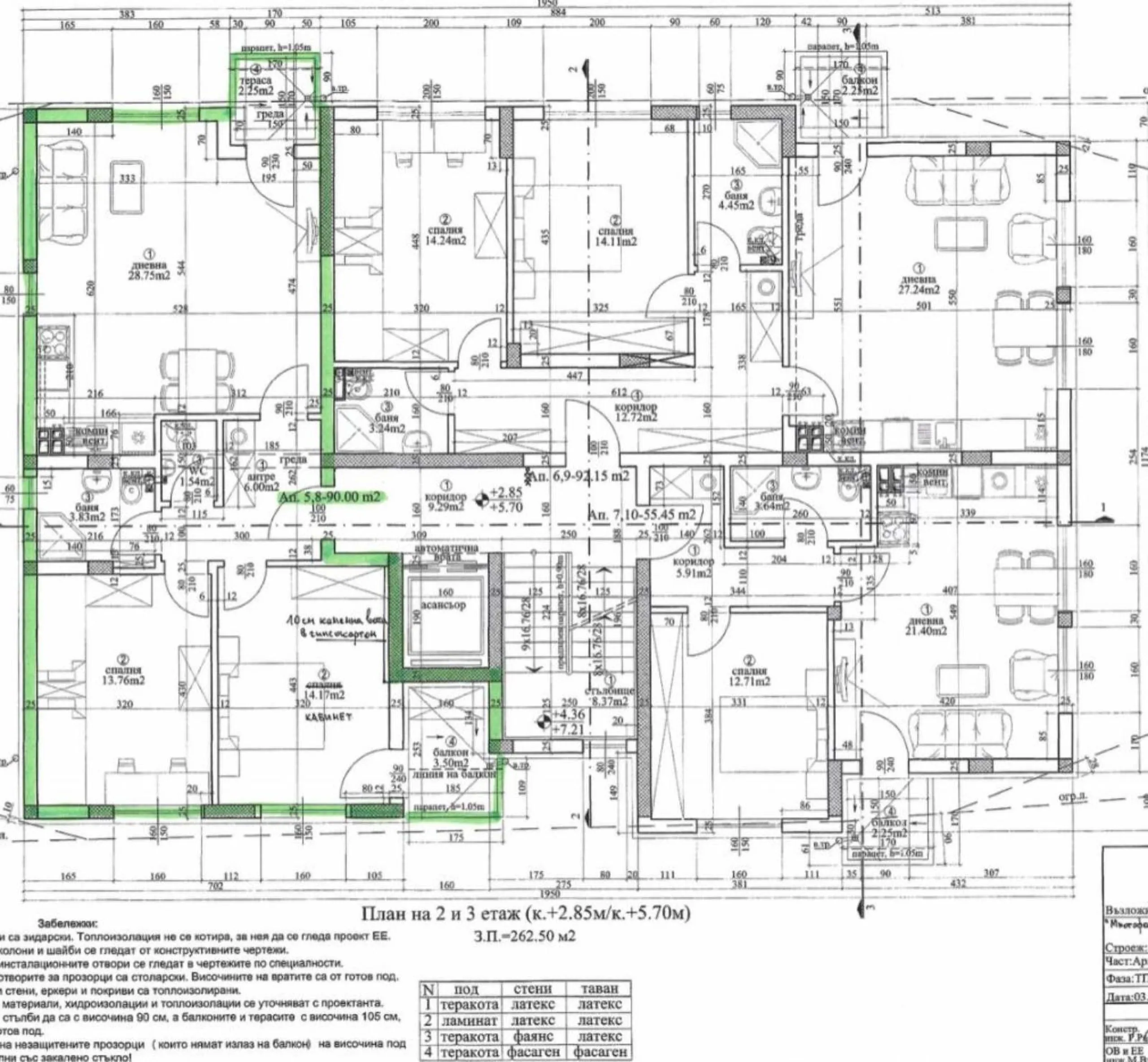
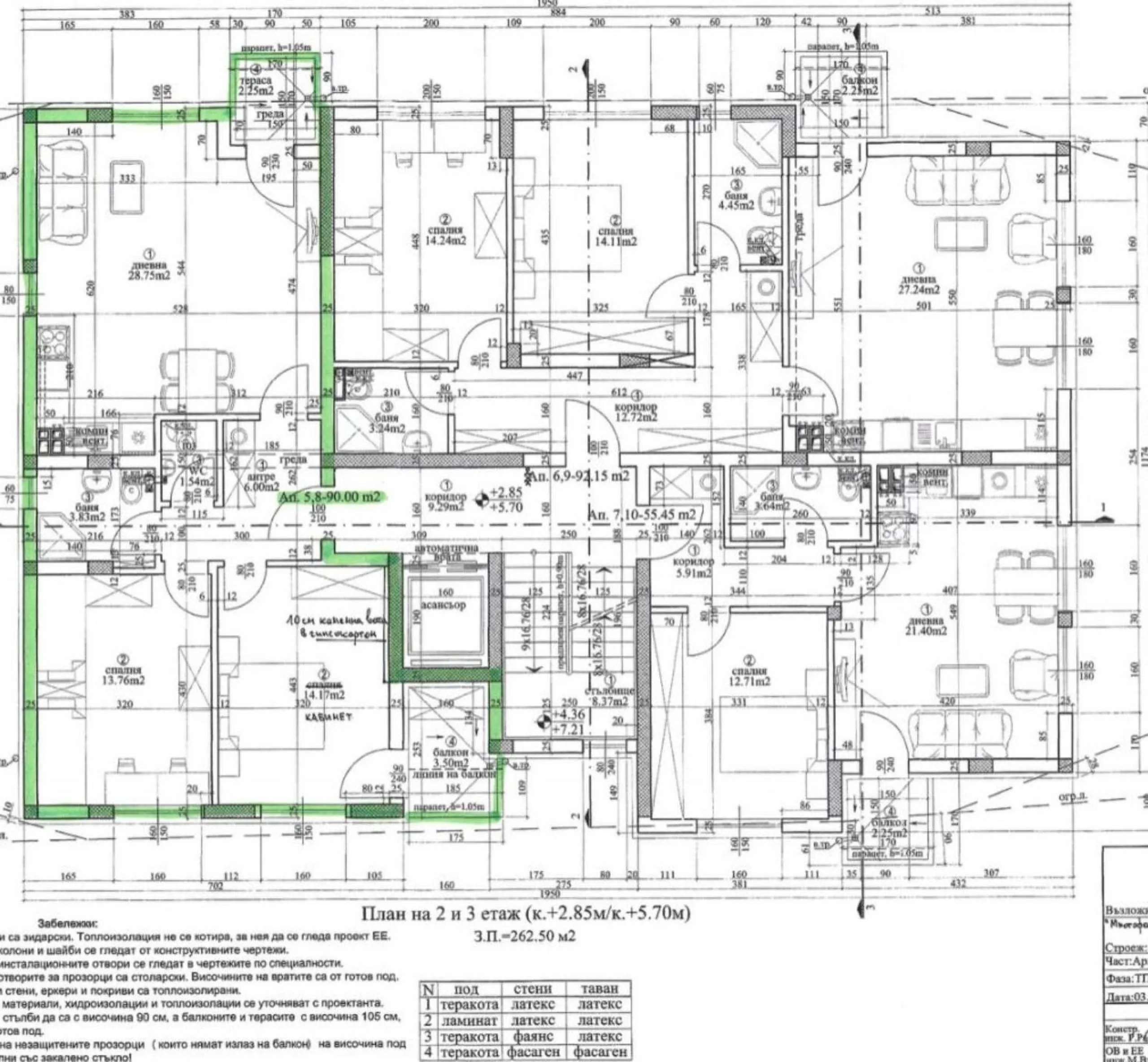
Детайли за етажа на
Проекта
Начало
"Жилищна сграда Виница "
Етаж 2
Имоти от
етажа