Начало
Имоти
Ексклузивни Имоти
Всички Имоти
Проекти
Екип
Кариера
Нашият Екип
Контакти
Вход
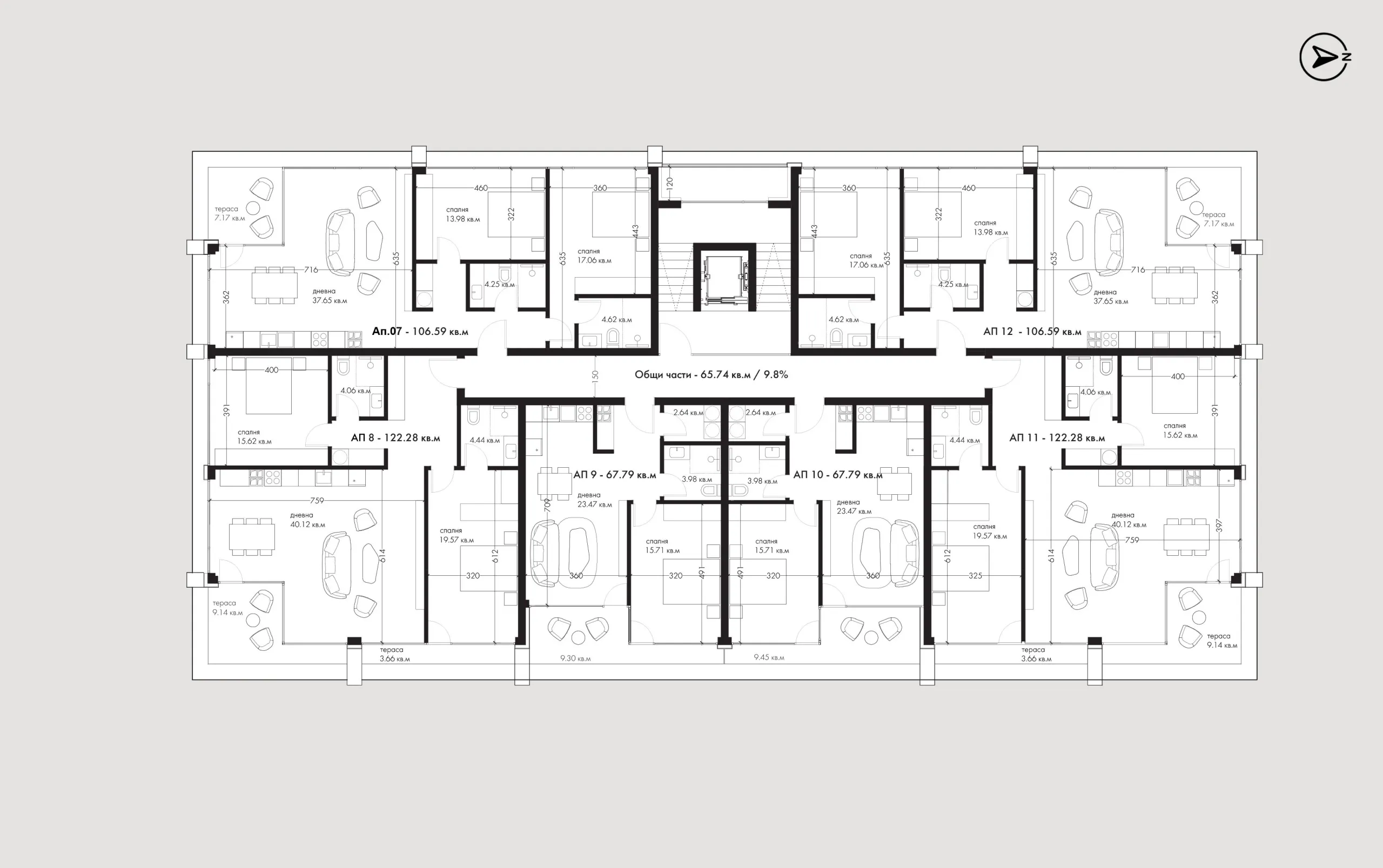
Детайли за етажа на
Проекта
Начало
"Константин и Елена палас"
Етаж 3
Имоти от
етажа