Начало
Имоти
Ексклузивни Имоти
Всички Имоти
Проекти
Екип
Кариера
Нашият Екип
Контакти
Вход
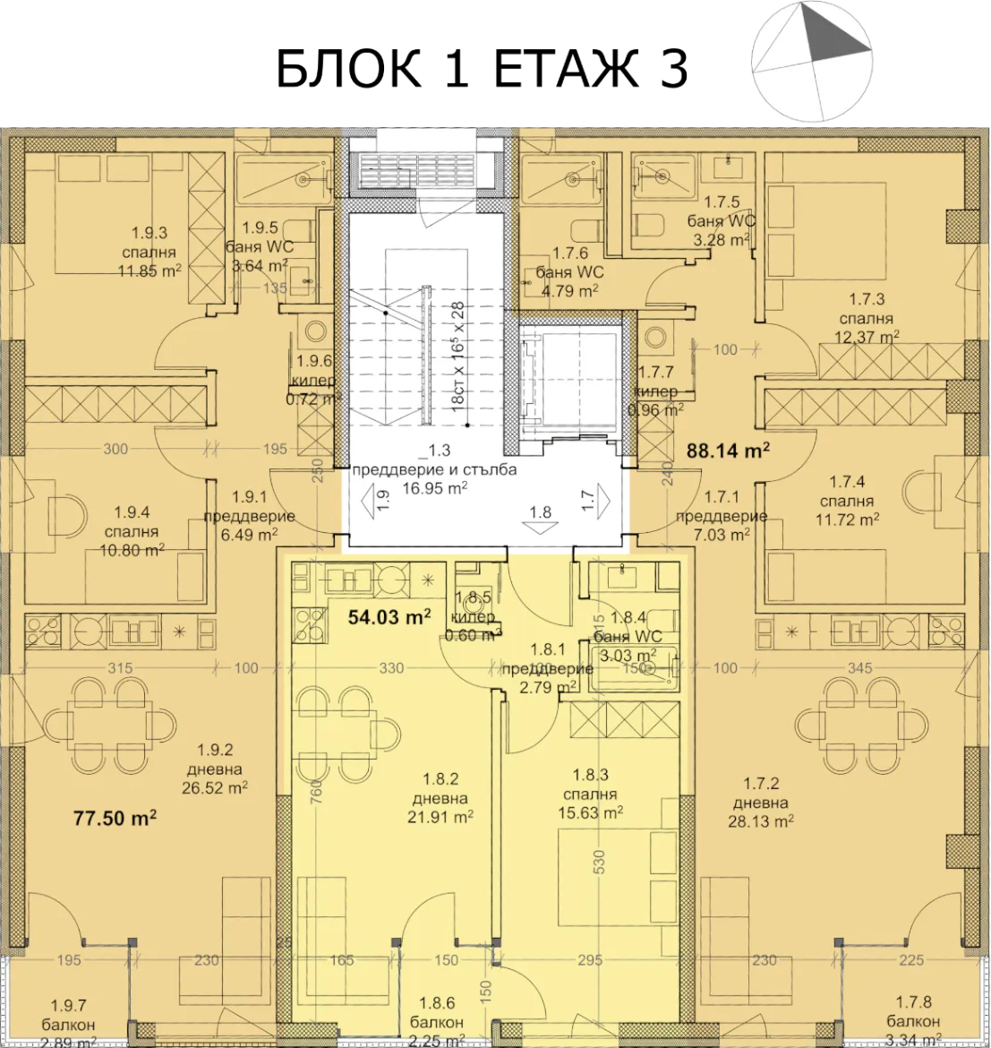
Детайли за етажа на
Проекта
Начало
"АЛФА-БЕТА-ГАМА"
Етаж 3
Имоти от
етажа
€185 000
Тристаен в нова сграда в кв. Младост
Варна, Младост,
Тристаен апартамент
Тухла
2025
91
3
€130 000
Двустаен в нова сграда в кв. Младост
Варна, Младост,
Двустаен апартамент
Тухла
2025
52
3
€175 000
Тристаен в нова сграда в кв. Младост
Варна, Младост,
Тристаен апартамент
Тухла
2025
84
3