Начало
Имоти
Ексклузивни Имоти
Всички Имоти
Проекти
Екип
Кариера
Нашият Екип
Контакти
Вход
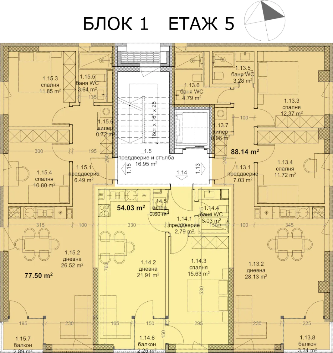
Детайли за етажа на
Проекта
Начало
"АЛФА-БЕТА-ГАМА"
Етаж 5
Имоти от
етажа
€185 000
Тристаен в нова сграда в кв. Младост
Варна, Младост,
Тристаен апартамент
Тухла
2025
106
5
€175 000
Тристаен в нова сграда в кв. Младост
Варна, Младост,
Тристаен апартамент
Тухла
2025
93
5