Начало
Имоти
Ексклузивни Имоти
Всички Имоти
Проекти
Екип
Кариера
Нашият Екип
Контакти
Вход
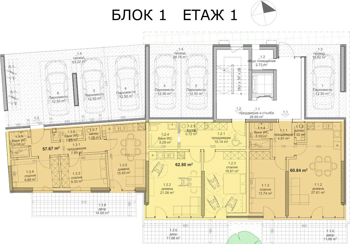
Детайли за етажа на
Проекта
Начало
"АЛФА-БЕТА-ГАМА"
Етаж 1
Имоти от
етажа
€140 000
Двустаен апартамент в кв. Младост
Варна, Младост,
Двустаен апартамент
Тухла
2025
73
1
€145 000
Двустаен в нова сграда в кв. Младост
Варна, Младост,
Двустаен апартамент
Тухла
2025
75
1
€138 000
Тристаен в нова сграда в кв. Младост
Варна, Младост,
Тристаен апартамент
Тухла
2025
69
1